Дом в аренду в поселке Согласие-1, 448 м2

Цена: 480 000 руб.
Код объекта: 316-017

Изысканный дом в стиле ар-деко уровня De Luxe с большим бассейном. Эксклюзивная отделка и мебель. Венецианская штукатурка, гобелен, лепнина, фрески, лестница, подоконники и столешница кухни из мрамора, бытовая техника Miele. Гараж с квартирой для персонала, беседка, парковка для 2-х м/м, большая терраса на 2-ом этаже, сауна, камин. Видеоролик

Общая площадь строений: 448 м2 (Дом 372 кв.м + 76 кв.м Гараж с квартирой для персонала)
Количество уровней: 3
Спален: 4. С/узлов: 3. Комнат всего: 7.
Опции: бассейн; машиномест крытых: 2, в т.ч. в теплом гараже: 2; сауна; квартира для персонала; терраса; камин.
Материал стен: кирпич
Облицовка стен: штукатурка, камень
Стадия готовности: меблирован
1-ый этаж: гостиная 108 кв.м совмещена с кухней-столовой, гостевая комната 17.5 кв.м, бассейн 63 кв.м, чаша 28 кв.м, зона СПА с сауной 28 кв.м, прихожая 4.2 кв.м, постирочная с санузлом 15 кв.м
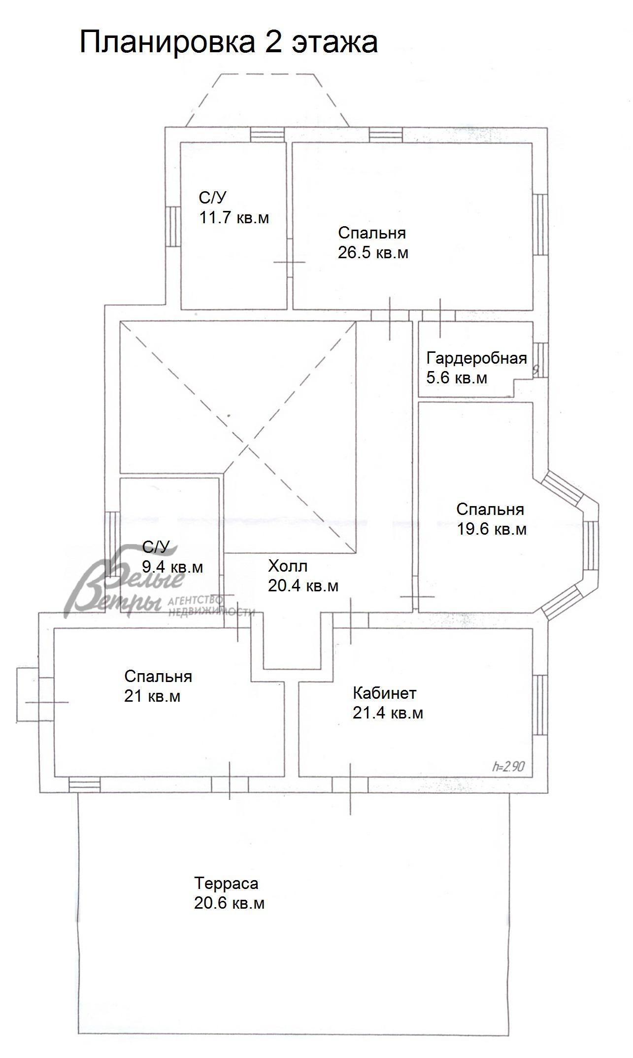
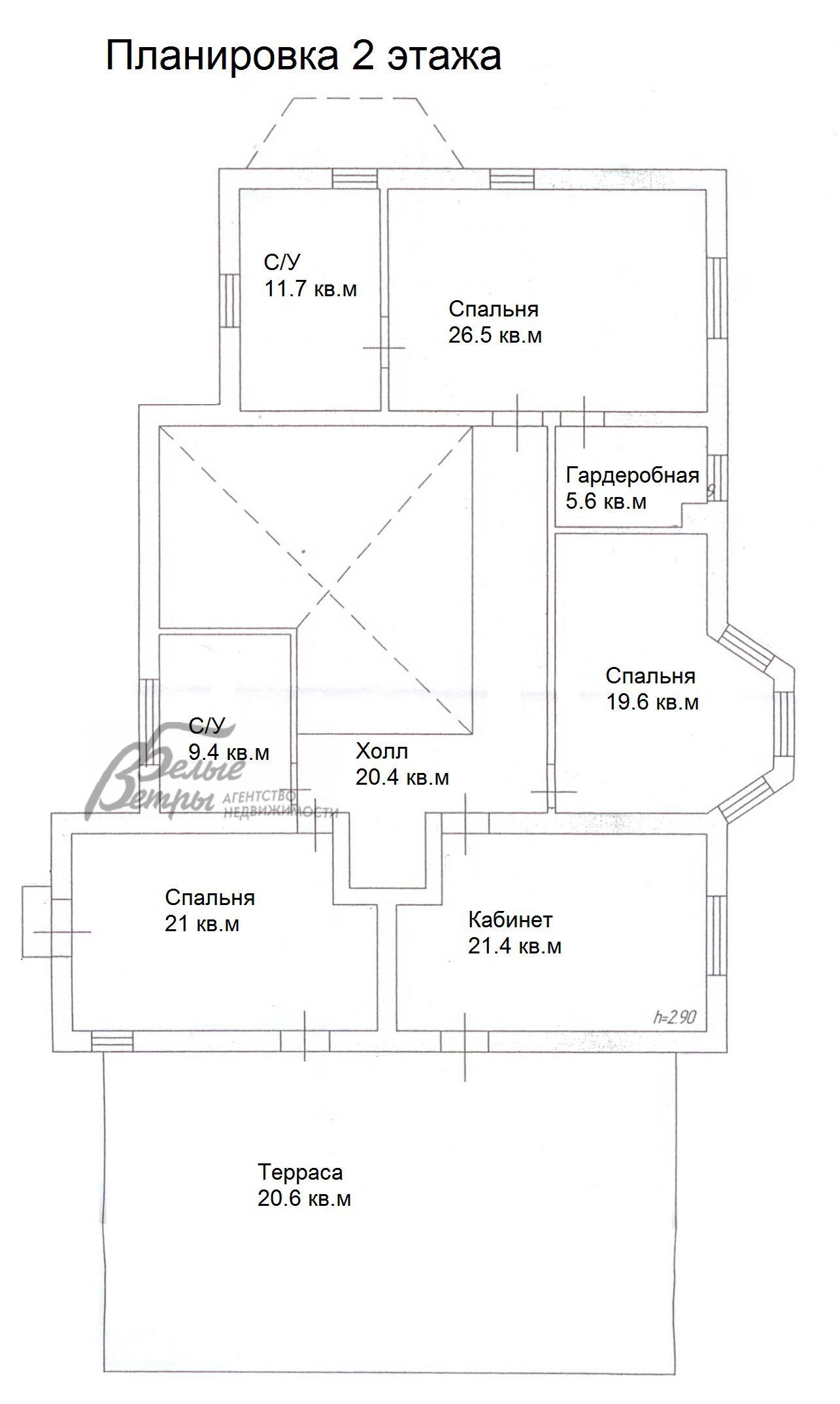
2-ой этаж: спальня с санузлом и гардеробной 47 кв.м, спальня с выходом на террасу 21 кв.м, детская 20 кв.м, санузел 9.5 кв.м, кабинет с выходом на террасу 21.5 кв.м
3-ий этаж: комната свободного назначения с кладовыми по периметру
Описание внутренней отделки: выполнена дизайнерская отделка в стиле ар-деко: венецианская штукатурка, обои, гобелен, лепнина. Лестница монолитная, отделанная мрамором с изящными коваными перилами. Столешница и подоконники кухни - мрамор.
Инженерное обеспечение: котельная под ключ, системы очистки воды, сигнализация
Мебель, оборудование: дом полностью меблирован, бытовая техника Miele
Дополнительные строения: Гараж с квартирой для персонала, беседка, площадка для 2-х машин.

Участок

Площадь участка, соток: 15
Тип участка: с деревьями
Благоустройство участка: ландшафтный дизайн

Полная информация об объекте в поселке Согласие-1

Фото


Планировки