Дом в аренду в поселке Микрорайон К (Троицк), 350 м2

Цена: 390 000 руб.
Код объекта: 312-021

Прекрасный дом 350 кв.м в эклектичном стиле с элементами стилей лофт, фахверк, кантри и модерн, с функциональной планировкой и свежим ремонтом, на лесном участке 6 соток в тихом живописном, обжитом и строгоохраняемом поселке со всеми центральными коммуникациями в Новой Москве. В доме с абсолютно новой мебелью и современной техникой, высокие потолки, панорамные окна в пол в гостиной, просторные 5 спален. На небольшом ухоженном участке с лесными деревьями уютная крытая беседка. Коттеджный поселок расположен в 10 минутах от города Троицк со всей развитой инфраструктурой. 

Общая площадь строений: 350 м2
Количество уровней: 2
Спален: 5. С/узлов: 3. Комнат всего: 7.
Опции: сауна; холодный подвал.
Материал стен: кирпич
Облицовка стен: красный облицовочный кирпич
Стадия готовности: меблирован
Цоколь: отапливаемое помещение свободного назначения, можно использовать под склад, для творчества или спорта
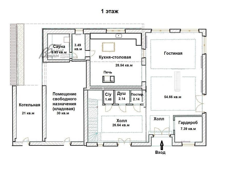
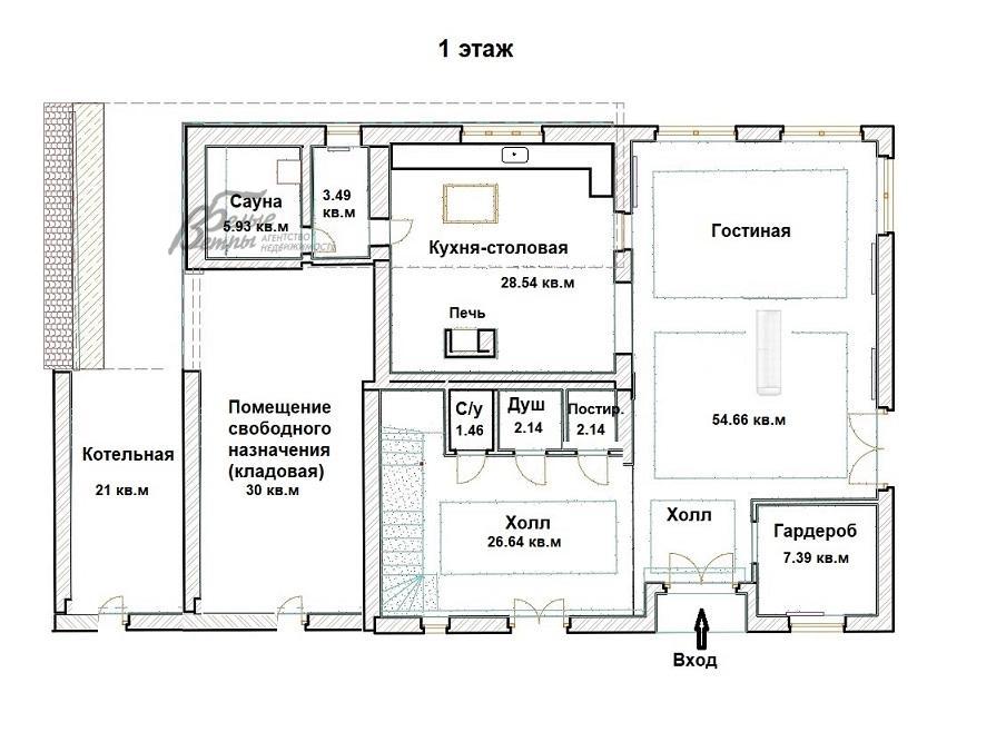
1-ый этаж: прихожая, переходящая в гостиную 54.7 кв.м, гардеробная 7.4 кв.м, кухня-столовая 28.6 кв.м, сауна 6 кв.м с предбанником 3.5 кв.м, холл 26.6 кв.м, туалет 1.4 кв.м, душевая 2 кв.м, постирочная 2 кв.м
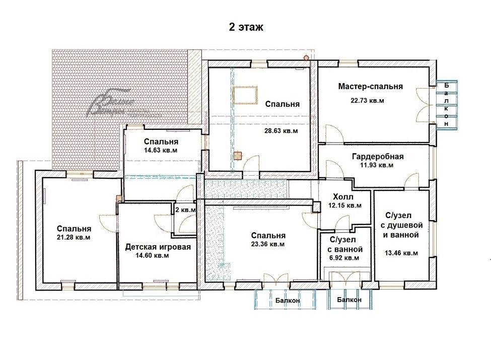
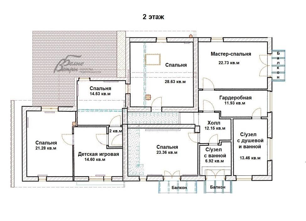
2-ой этаж: спальня 14.6 кв.м, игровая 14.6 кв.м, спальня 21 кв.м, мастер- спальня 23 кв.м с ванной и душевой 13.5 кв.м и гардеробной 12 кв.м, детская спальня 22 кв.м с балконом, санузел 7 кв.м (с ванной)
Описание внутренней отделки: дизайнерская эклектика в интерьере: совмещение элементов стилей - лофт (стены), фахверк (отделка потолков), кантри (Русская печь в кухне), модерн (окна). На полу в гостиной и в некоторых спальнях - ковровое покрытие, в мастер-спальне - паркетная доска. В санузлах - коллекционная плитка, в столовой - также плитка, в этих помещениях пол с водяным подогревом. Стены окрашены, в гостиной и кухне - окрашенные стены из кирпича, в некоторых спальнях - комбинированные. Потолки - гипсокартон; в жилых комнатах 2-го этажа - имитация деревянных балок на потолке с эффектной подсветкой.
Инженерное обеспечение: газовый котел Buderus (Германия), накопительный бойлер, оборудована система водоподготовки. Вентиляция естественная, кондиционеры в спальнях на 2-м этаже.
Мебель, оборудование: в доме стильная современная меблировка: в гостиной модульный диван, в мастер-спальне большая кровать с тумбочками, шкаф. В одной из спален две кровати, выполненные на заказ. В жилых комнатах - шкафы для одежды, полки, прикроватные тумбы, журнальный столик, кресла. Недостающая мебель будет куплена под запрос арендатора. Новый современный кухонный гарнитур со встроенной техникой Weissgauff: газовая варочная панель, духовой шкаф, посудомоечная машина, а также вытяжка, двухдверный холодильник Weissgauff - вся техника абсолютно новая. Обеденный стол из массива дерева. На кухне русская печь, на которой можно готовить традиционные блюда. Стиральная и сушильная машина Tuvio, телевизор в гостиной. Во всех помещениях карнизы, шторы, занавески. Дизайнерские светильники и люстры, трековые светильники, картины и прочее. В беседке - уличная мебель (диван, кресла, тумба, журнальный столик).
Дополнительные строения: - Крытая беседка с террасой для отдыха, с деревянной садовой мебелью и красивой вечерней подсветкой

Участок

Площадь участка, соток: 6.2
Тип участка: с лесными деревьями
Благоустройство участка: ровный участок с лиственными и хвойными взрослыми деревьями, огорожен деревянным забором на ленточном фундаменте

Полная информация об объекте в поселке Микрорайон К (Троицк)

Фото


Планировки